Ficha
SEGREGABLE
Piso en venta en Madrid (Arguelles)
REF. 1382

423 m2

5

4

1

2
venta: 3.260.000 €
antes: 3.270.000 €
Descripción

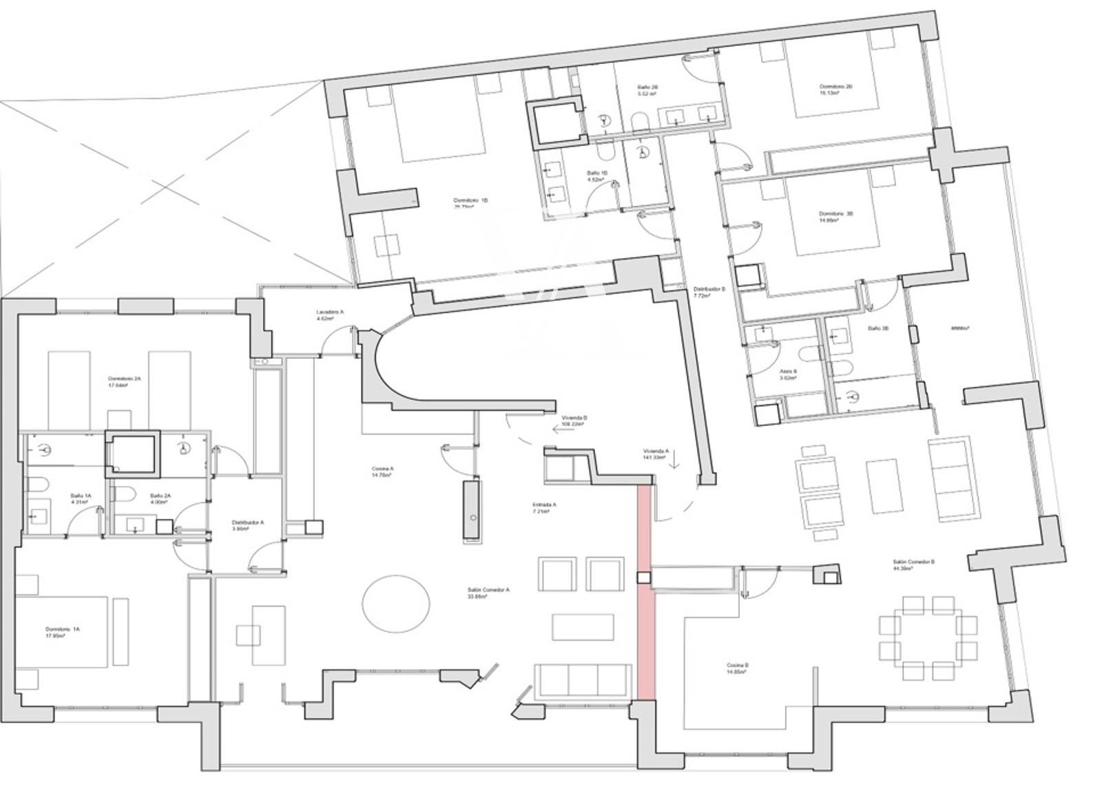
vendre &Acheter Real Estate vende este lienzo en blanco ofreciendo varias opciones  dos viviendas amplias para reformar, en una de las zonas más cotizadas de Argüelles, junto a Pintor Rosales

Se venden por separado o en conjunto. 


- Vivienda de tres dormitorios en esquina, con terraza a calle Quintana

Construidos con zonas comunes: 228,92 m2

Anexos: plaza de garaje y trastero

Precio: 1.850.000 € (7.950 €/m2)


- Vivienda de dos dormitorios con terraza grande a calle Quintana 

construidos con zonas comunes de 191,71 m2.

Precio: 1.410.000€ (7.355 €/m2)

El piso es muy luminoso y espacioso, perfecto para familias grandes o quienes necesiten varias estancias para trabajar desde casa.

Ubicación inmejorable, junto al Corte Inglés, con todos los servicios a mano: transporte público, comercios, colegios y zonas verdes.

Posibilidad de segregación según acta de comunidad de propietarios.

Magnifica inversión!!

Acompañamos durante todo el proceso mediante una atención personalizada y con total transparencia, para aportar la máxima seguridad en la experiencia que supone una transacción inmobiliaria.

Resolvemos cualquier consulta o duda, tanto fiscal como jurídica.

Encontramos la FINANCIACIÓN ideal según las necesidades o expectativas.

Ponemos a disposición servicios profesionales para tramitar compraventas, liquidación de plusvalías, herencias, cancelaciones de hipoteca, levantamiento de embargos, certificados de eficiencia energética (CEE) y otras gestiones vinculadas a los inmuebles.

Ventajas de Comprar con Nosotros:

· Asesoramiento Legal y Fiscal: Nuestros expertos legales y fiscales le proporcionarán un asesoramiento completo para garantizar que su inversión se realice de manera eficiente desde el punto de vista fiscal y legal.

· Profesionalismo y Ética: Nuestro compromiso con la ética y la integridad nos diferencia. Puedes confiar en nosotros para garantizar una transacción justa y transparente.

Esta es su oportunidad de adquirir la propiedad que siempre ha deseado con el respaldo de profesionales en el campo legal. No dude en ponerse en contacto con nosotros hoy para obtener más información y programar una visita.

Disponemos de mas viviendas de similares características en las mejores zonas de Madrid. Llámenos sin compromiso.


Características
Precio Venta 3.260.000 €
Precio/m² 7.707
Año de construcción 1926
Construidos 423 m2
Dormitorios 5
Baños 4
Cocina Amueblada
Calefacción Central
Trastero
Terraza
Altura/Planta 2
Estado Reformar
Tipo de suelo Parquet
Ascensor
Garaje
Calificación Energética (D) VER
Luz
Gas
Agua
Conserje
Escalas de eficiencia


Eficiencia Emisiones: 263,00
Eficiencia Consumo: 263,00
263
263

Tu agente
Charo Carballo
Contáctanos

Si deseas más información sobre esta propiedad, por favor, rellena el formulario.

 Sí, he leído y/o acepto las Condiciones de uso y la Política de privacidad
Galería
Inmuebles similares:
 
3.650.000 €
Ref. 1151  275 m2  4  5
Piso en venta en Madrid, con 275 m2, 4 habitaciones y 4 baños aseo de cortesía, Trastero, Ascensor, Amueblado y Aire acondicionado por conductos.Plaza de garaje alquiler en finca cercana. 
 
2.800.000 €
Ref. 1351  171 m2  3  4
Piso en venta en Madrid, con 171 m2, 3 habitaciones y 4 baños, Garaje, Ascensor, Amueblado, Aire acondicionado y Calefacción Central.